hackl | architektLogo

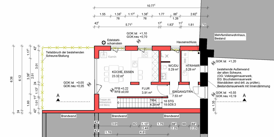
Teil-Umbau einer Scheune zum Wohnhaus, Nutzung des verbleibenden Scheunenteils als Pferde-/Viehstallung und für landwirtschaftliche Geräte, Wunsiedel-Schönlind (Entwurf, Bauantrag), 2019

Die Aufgabe bestand darin, dass der Bauherr aus seiner bisherigen zu großen Wohnung auf dem Gehöft in eine kleinere Wohnung auf dem grundstück umziehen wollte, um für die Familien der Kinder Platz zu machen. Nachdem die vorhandene Schuene in Teilen baufällig war, wurde beschlossen, diesen Teil zu einer Wohnung umzugestalten.
Das Gebäude ist Hofseitig weiterhin in der gleichen Optik und behält dort die bestehenden Fenster- und Türöffnungen aus dem Bestand bei.